Skip to main content

Image / Materials Research Lab (MRL)

Have a question about this item?

Item information. View source record on contributor's website.

Title
Materials Research Lab (MRL)
Creator
Roesling Nakamura Terada Architects / Koening Eizenberg Architects
Date Created and/or Issued
1997
Publication Information
Architecture and Design Collection. Art, Design & Architecture Museum; University of California, Santa Barbara
Contributing Institution
UC Santa Barbara, Architecture and Design Collection, Art, Design and Architecture Museum
Collection
University of California, Santa Barbara: Campus Buildings
Rights Information
Transmission or reproduction of materials protected by copyright beyond that allowed by fair use requires the written permission of the copyright owners. Copyright restrictions also apply to digital representations of the original materials. Works not in the public domain cannot be commercially exploited without permission of the copyright owner. Responsibility for any use rests exclusively with the user. University of California Regents.
Description
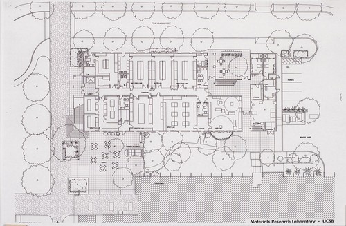
The plot plan for the first floor of the Materials Research Lab building shows the intricacies of fitting new buildings into the campus. The original Engineering building is immediately to the south, with an access road, pedestrian and bike paths surrounding the building. The addition of outdoor courtyards and abundant landscaping allow for a relaxing exterior space. The close proximity to other engineering and science buildings facilitates the interdisciplinary nature of much of the research that takes place at MRL.
Type
image
Format
image/jpeg
Identifier
adc_186_d56_ff4_01
Language
English
Subject
University of California, Santa Barbara
Place
Santa Barbara, Calif.
Goleta, Calif.
Source
University of California, Santa Barbara Campus Building records, Architecture and Design Collection. Art, Design & Architecture Museum; University of California, Santa Barbara.
Relation
Drawer 56, flat file 4

About the collections in Calisphere

Learn more about the collections in Calisphere. View our statement on digital primary resources.

Copyright, permissions, and use

If you're wondering about permissions and what you can do with this item, a good starting point is the "rights information" on this page. See our terms of use for more tips.

Share your story

Has Calisphere helped you advance your research, complete a project, or find something meaningful? We'd love to hear about it; please send us a message.

Explore related content on Calisphere: